Disponível a partir da versão:
Plugin Builder 1.60.14.21 ou superior.
As areas de trabalhos possuem configurações de ponto zero, estes que irão influenciar no posicionamento das operações nos programas de máquina.
O campo Ponto zero por face determina se o ponto zero usado é por face ou é um ponto zero único para toda a peças.
 
Configuração
Ponto zero por face
Ao marcar o campo Ponto zero por face, será exibida a tela para definição de um ponto zero por face.
Ponto zero por peça
Ao desmarcar o campo Ponto zero por face será exibida a tela para definição de apenas um ponto zero para a peça.
Posicionamento por área de trabalho
Dependendo do tipo de configuração e pontos zeros selecionados, as operações são geradas com um posicionamento diferente.
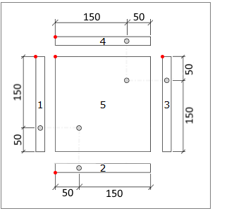
Para ilustrar todos os casos possíveis, como exemplo vamos utilizar a peça exibida abaixo.
IMPORTANTE: a peça está representada usando o 3º Diedro, possui 15mm de espessura e todas as operações em faces de perfil estão centralizadas.
Ponto zero por face
Ao selecionar ponto zero por face, cada face vai ter seu próprio ponto zero, e as operações irão respeitar o ponto zero da sua respectiva face. Abaixo alguns exemplos:
Exemplo 01 - Ponto zero por face
- Configuração
 
- Configuração na peça
 
- Posicionamento em programas
 
Face 1:
Furo: X=150, Y=7.5
Face 2:
Furo: X=50, Y=7.5
Face 3:
Furo: X=150, Y=7.5
Face 4:
Furo: X=50, Y=7.5
Face 5:
Furo 1: X=50, Y=50
Furo 2: X=150, Y=150
Exemplo 02 - Ponto zero por face
- Configuração
 
- Configuração na peça
 
- Posicionamento em programas
 
Face 1:
Furo: X=50, Y=7.5
Face 2:
Furo: X=150, Y=7.5
Face 3:
Furo: X=50, Y=7.5
Face 4:
Furo: X=150, Y=7.5
Face 5:
Furo 1: X=150, Y=150
Furo 2: X=50, Y=50
Exemplo 03 - Ponto zero por face
- Configuração
 
- Configuração na peça
 
- Posicionamento em programas
 
Face 1:
Furo: X=150, Y=7.5
Face 2:
Furo: X=50, Y=7.5
Face 3:
Furo: X=50, Y=7.5
Face 4:
Furo: X=150, Y=7.5
Face 5:
Furo 1: X=50, Y=150
Furo 2: X=150, Y=50
Ponto zero por peça
Ao selecionar ponto zero por peça, todas a s operações irão respeitar o mesmo ponto zero. Abaixo alguns exemplos:
Exemplo 01 - Ponto zero por peça
- Configuração
 
- Configuração na peça
 
- Posicionamento em programas
 
Face 1:
Furo: X=0, Y=50, Z=7.5
Face 2:
Furo: X=50, Y=0, Z=7.5
Face 3:
Furo: X=200, Y=150, Z=7.5
Face 4:
Furo: X=150, Y=200, Z=7.5
Face 5:
Furo 1: X=50, Y=50, Z=0
Furo 2: X=150, Y=150, Z=0
Exemplo 02 - Ponto zero por peça
- Configuração
 
- Configuração na peça
 
- Posicionamento em programas
 
Face 1:
Furo: X=200, Y=150, Z=7.5
Face 2:
Furo: X=150, Y=200, Z=7.5
Face 3:
Furo: X=0, Y=50, Z=7.5
Face 4:
Furo: X=50, Y=0, Z=7.5
Face 5:
Furo 1: X=150, Y=150, Z=15
Furo 2: X=50, Y=50, Z=15
Exemplo 03 - Ponto zero por peça
- Configuração
 
- Configuração na peça
 
- Posicionamento em programas
 
Face 1:
Furo: X=0, Y=150, Z=7.5
Face 2:
Furo: X=50, Y=200, Z=7.5
Face 3:
Furo: X=200, Y=50, Z=7.5
Face 4:
Furo: X=150, Y=0, Z=7.5
Face 5:
Furo 1: X=50, Y=150, Z=0
Furo 2: X=150, Y=50, Z=0