Disponible desde la versión:
Plugin Builder 1.60.14.21 o superior.
Las áreas de trabajo tienen ajustes de punto cero por cara, que influirán en el posicionamiento de las operaciones en los programas de la máquina.
El campo Punto cero por cara determina si el punto cero utilizado es por cara o un único punto cero para todas las partes.
Configuración
Punto cero por cara
Al marcar el campo Punto cero por cara, se mostrará la pantalla para definir un punto cero por cara.
Punto cero por pieza
Deseleccionando el campo Punto cero por cara aparecerá la pantalla para definir sólo un punto cero para la pieza.
Posicionamiento por área de trabajo
Según el tipo de configuración y los puntos cero seleccionados, las operaciones se generan con un posicionamiento diferente.
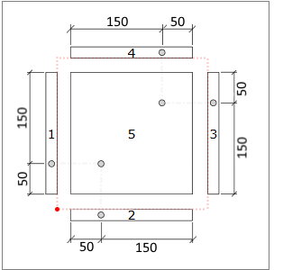
Para ilustrar todos los casos posibles, como ejemplo utilizaremos la pieza que se muestra a continuación.
IMPORTANTE: la pieza se representa con la 3ª Diedro, tiene 15mm de espesor y todas las operaciones en las caras del perfil están centradas.
Punto cero por cara
Al seleccionar el punto cero por cara, cada cara tendrá su propio punto cero, y las operaciones respetarán el punto cero de su cara respectiva. A continuación hay algunos ejemplos:
Ejemplo 01 - Punto cero por cara
- Configuración
- Configuración de la pieza
- Posicionamiento en programas
Cara 1:
Perfuración: X=150, Y=7.5
Cara 2:
Perfuración: X=50, Y=7.5
Cara 3:
Perfuración: X=150, Y=7.5
Cara 4:
Perfuración: X=50, Y=7.5
Cara 5:
Perfuración 1: X=50, Y=50
Perfuración 2: X=150, Y=150
Ejemplo 02 - Punto cero por cara
- Configuración
- Configuración de la pieza
- Posicionamiento en programas
Cara 1:
Perfuración: X=50, Y=7.5
Cara 2:
Perfuración: X=150, Y=7.5
Cara 3:
Perfuración: X=50, Y=7.5
Cara 4:
Perfuración: X=150, Y=7.5
Cara 5:
Perfuración 1: X=150, Y=150
Perfuración 2: X=50, Y=50
Ejemplo 03 - Punto cero por cara
- Configuración
- Configuración de la pieza
- Posicionamiento en programas
Cara 1:
Furo: X=150, Y=7.5
Face 2:
Furo: X=50, Y=7.5
Face 3:
Furo: X=50, Y=7.5
Face 4:
Furo: X=150, Y=7.5
Face 5:
Furo 1: X=50, Y=150
Furo 2: X=150, Y=50
Punto certo por pieza
Al seleccionar el punto cero por pieza, todas las operaciones respetarán el mismo punto cero. A continuación hay algunos ejemplos:
Ejemplo 01 - Punto cero por pieza
- Configuración
- Configuración de la pieza
- Posicionamiento en programas
Cara 1:
Furo: X=0, Y=50, Z=7.5
Cara 2:
Perfuración: X=50, Y=0, Z=7.5
Cara 3:
Perfuración: X=200, Y=150, Z=7.5
Cara 4:
Perfuración: X=150, Y=200, Z=7.5
Cara 5:
Perfuración 1: X=50, Y=50, Z=0
Perfuración 2: X=150, Y=150, Z=0
Ejemplo 02 - Punto cero por pieza
- Configuración
- Configuración de la pieza
- Posicionamiento en programas
Cara 1:
Perfuración: X=200, Y=150, Z=7.5
Cara 2:
Perfuración: X=150, Y=200, Z=7.5
Cara 3:
Perfuración: X=0, Y=50, Z=7.5
Cara 4:
Perfuración: X=50, Y=0, Z=7.5
Cara 5:
Perfuración 1: X=150, Y=150, Z=15
Perfuración 2: X=50, Y=50, Z=15
Ejemplo 03 - Punto cero por pieza
- Configuración
- Configuración de la pieza
- Posicionamiento en programas
Cara 1:
Furo: X=0, Y=150, Z=7.5
Cara 2:
Furo: X=50, Y=200, Z=7.5
Cara 3:
Furo: X=200, Y=50, Z=7.5
Cara 4:
Furo: X=150, Y=0, Z=7.5
Cara 5:
Perfuración 1: X=50, Y=150, Z=0
Perfuración 2: X=150, Y=50, Z=0