It is important to remember that materials are not the same category as colors or textures. Each material has specific attributes that determine its appearance. For example: glass has properties such as reflection and transparency, while wood has characteristics such as roughness. These particularities of each material help give a more realistic look to the final image of the project.
To understand how materials work, it is important to remember that each real object has a predominant color, a texture, a specific level of reflection, and roughness. Each material, such as glass, wood, and stone, has its own characteristics.
To generate images close to reality, Promob simulates these characteristics through the material, which are textures or colors that possess the characteristics of the material they represent.
In this article, check more about:
▼ How to apply Material to the item
To generate more realistic images, Promob uses material simulation based on their physical characteristics. Each object in the real world has specific attributes, such as predominant color, texture, level of reflection, and degree of roughness that vary depending on the material, whether glass, wood, stone, among others. This precise representation of materials gives the final image a look faithful to the reality of the project.
For example, the glass material has properties such as reflection and transparency. The wood material has roughness, and thus, each material has its own characteristics.
To check how to apply the material, click on the desired item:
1. Floor
2. Wall
3. Bands
4. Regions
5. Geometries
6. Decore library item
7. Openings
Floor
1. In the Promob sidebar, access the Materials. screen.
2. Select the desired material, and drag it onto the floor while holding the left mouse button. Release the mouse button, the material will be applied.
Wall
1. In the Promob sidebar, access the Materials. screen.
2. Select the material to be applied and drag it onto the wall.
3. Release the mouse, and define where the material should be applied:
- Face: applies the material to the face of the wall where the material was dragged
- All: applies the material to all walls in a set.
Bands
1. In the Promob sidebar, access the Materials. screen.
2. Select the material to be applied and drag it onto the band.
3. Release the mouse, and define where the material should be applied:
- Region: applies the material to the region over which the mouse is positioned.
- Profile: applies the material to the profile of the wall over which the mouse is positioned.
- Horizontal Profile: applies the material to the entire horizontal profile of the band.
- Vertical Profile: applies the material to the entire vertical profile of the band.
- Face: applies the material to the selected wall face.
- All: applies the material to all walls in a set.
Regions
1. In the Promob sidebar, access the Materials. screen.
2. Select the material to be applied and drag it onto the region.
3. Release the mouse, and define the region location where the material should be applied:
- Region: applies the material to the region over which the mouse is positioned;
- Face: applies the material to the face of the plane where the region was built;
- All: applies the material to all faces of the plane where the region was built;
Geometries
1. In the Promob sidebar, access the Materials. screen.
2. Select the material to be applied and drag it onto the geometry.
3. Release the mouse, and define the geometry location where the material should be applied:
- Face: applies the material to the selected geometry face;
- All: applies the material to all faces of the geometry;
- Perforation: applies material to a perforating geometry;
Decore Library Item
1. In the Promob sidebar, access the Materials. screen.
2. Select the material to be applied and drag it onto the Decore library item:
3. Release the mouse, and define where the material should be applied:
- Only on this item: applies the material only where it was dragged;
- On all of this type: applies the material to all project items of the same type;
- Items of my choice: enables the Brush tool, so that by clicking, the material is applied to the desired items;
- Only on this object: applies the material to all components of the object;
- On objects of this type: applies the material to all identical objects present in the environment;
- With the same model: applies the material to all objects, even if different, that have the same model applied.
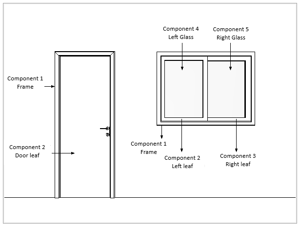
Openings
The process of defining finishes for doors and windows inserted in the project is similar to the process of applying finishes to walls and floors. The difference is that openings are divided into components that allow the assignment of different materials. See the image:
1. In the Promob sidebar, access the Materials. screen.
2. Select the material to be applied and drag it onto the Opening component.
IMPORTANT: Material application on openings is done on their components. Thus, when dragging a material to the opening, drag it to the component where you want to apply the material.
3. Release the mouse, and define where the material should be applied:
- Only on this item: applies the material only to the component where the material was dragged;
- On all of this type: applies the material to all common components in the environment;
- Items of my choice: enables the Brush tool, so that by clicking, the material is applied to the desired items;
- Only on this object: applies the material to all components of the object;
- On objects of this type: applies the material to all identical objects present in the environment;
- With the same model: applies the material to all objects, even if different, that have the same model applied.
▼ How to configure Material properties
The properties of materials applied to the environment can significantly affect the rendered image result, as these properties determine how light should interact with the surfaces of objects inserted in the environment. Thus, for each object inserted in the project (floor, ceiling, geometry, walls, modules), it will be possible to configure its properties and improve the final rendering result.
To edit the material properties through the Properties Panel:
1. Select the item where the material was applied. Access the Tools Panel - Properties and click on the Materials tab and the Advanced button.
The properties that can be configured are:
- Components: select the component for which you want to configure the material properties.
- Color:
Border Color: defines the color of the applied texture's border.
Border Thickness: defines the thickness of the applied texture's border.
Base Color: defines the color of the texture.
Complementary colors: changes the color of the material applied to the piece.
Texture: displays the directory where the texture is saved.
- Mapping
Scale in X: defines the scale of the texture on the X axis.
Scale in Y: defines the scale of the texture on the Y axis.
Mirror: mirrors the texture applied to the item.
Mirror X: reflects the texture applied to the item on the X axis.
Mirror Y: reflects the texture applied to the item on the Y axis.
Mapping: defines the mapping method of the texture applied to the item. The insertion of the texture into the item follows the mapping method:
Planar: distributes the texture according to the number of scales it should have.
Cube: distributes the texture on the item's plane according to its real scale.
Spherical X: distributes the texture on the item's X plane in a spherical shape.
Spherical Y: distributes the texture on the item's Y plane in a spherical shape.
Spherical Z: distributes the texture on the item's Z plane in a spherical shape.
UV Mapping: standard texture mapping on an object. The texture will be applied on all axes of the object.
Rotation: defines the rotation in degrees of the texture on the item.
- Texture on Frames
Apply Texture on Frames: select Yes. IMPORTANT: if this property is set to No and the other configurations are made, they will not be applied to the frame.
Texture Width: enter the width of the texture applied to the frame.
Texture Height: enter the height of the texture applied to the frame.
Position Frame on X: enter the position of the selected frame on the texture's x-axis.
Position Frame on Y: enter the position of the selected frame on the texture's y-axis.
- Real Scene
Crand: defines the size of the area formed by the bright spots generated by the Specularity property. Therefore, these properties should be combined to create the effect. IMPORTANT: this property is only noticeable in the render.
Maximum Reflection: controls the intensity of the reflection of objects inserted in the project. IMPORTANT: this property is only noticeable in the render.
Metallic: defines a metallic effect for the material. The item's shine is modified by the color of its surface and not just by the color of the light source. IMPORTANT: this property is only noticeable in the render.
Minimum Reflection: controls the intensity of the reflection of lights inserted in the project. IMPORTANT: this property is only noticeable in the render.
Roughness: defines relief for the material applied to the item. IMPORTANT: this property is only noticeable in the render.
Specular: regulates the intensity of the shine generated by light on the material. This effect "creates" small bright spots when light reflects on the material's surface. The size of the area formed by the spots is defined by the Roughness effect. Therefore, these properties should be combined to create the effect. IMPORTANT: this property is only noticeable in the render.
Transparency: applies a transparency effect to the material applied to the object. The effect of this property can be observed both in the environment and in the rendered image.
▼ Copy Material
To copy the material from an object, geometry, floor, wall, modulation items to another:
1. Click on the Copy Color menu in the top toolbar.
2. Notice that the mouse cursor changes. Click on the item that has the material you want to copy:
3. In the message displayed, select the option you want to copy:
Model: copy the model applied to the module. Then, click on the modules in the environment to apply it. The copied model can only be pasted on items of the same type. For example, when copying the box model of a module, it can only be applied to the boxes of other modules in the environment.
Material: copy the material used in the module. Then, click on the items in the environment to apply it. The copied material can be used on any item in the environment, except modulation items in systems different from Plus and Arch.
4. Click on the item where the copied material should be applied:
5. To disable the Copy Color tool, click on the Select/Move menu or press the M key on the keyboard.
▼ How to change the Material tone
To change the tone of a material:
1. After applying the material to an item in the environment, click on the Change Tone menu in the top toolbar.
2. Notice that the mouse cursor changes, click on the item where the material was applied.
3. The Color screen is displayed, select the desired color tone and click OK.
4. The tone is applied to the project item.
5. To disable the Change Tone tool, click the Select/Move button or press the M key on the keyboard.
▼ How to save Material as Favorite
To save a material as favorite:
1. In the Materials screen, right-click on the material and select the option Add to Favorites.
2. Enter a name for the material, and click Create to create groups to organize them.
3. View the material in the Favorites tab.
4. To access the edit window again, right-click on the material and select the Edit option.
▼ Organize Favorite Materials
To organize materials:
1. Click the Organize Materials button in the materials window.
2. Select the libraries/items you want to organize.
TIP: to select more than one item, hold the Ctrl key and select the items with the mouse.
3. The tools to organize materials are:
| Icon | Description | How to use the tool |
| Move up: moves the selected items up. | Click the button after selecting the groups/materials. | |
| Move down: moves the selected items down. | Click the button after selecting the groups/materials. | |
| Hide: hides the items in the materials window. | Click the button after selecting the groups/materials. | |
| Make visible: makes the selected hidden items visible again in the materials window. | Click the button. | |
| Make all visible: makes all hidden items visible again in the materials window. | Click the button. | |
| Show only hidden: shows only the items that are hidden in the materials window. | Click the button. | |
| Set as initial tab: the selected tab becomes the first tab displayed in the materials window. | Click the button after selecting the material group. | |
| Restore default order: restores the original order of the libraries. | Click the button. |
▼ Export Favorite Materials
To export favorite materials:
1. Click on the File - Export - Favorite Materials.
2. Define the directory to save and the file name, then click Save.
3. When the export is complete, the message Favorite materials exported successfully! is displayed, click OK.
▼ Import Favorite Materials
To import favorite materials:
1. After exporting favorite materials, click on the File - Import - Favorite Materials.
2. Locate the file to be imported and click Open.
3. When the import is complete, the message Favorite materials imported successfully! is displayed, click OK.
4. In the Materials screen, access the Favorites tab and check the imported materials.
▼ Promob - Quick Material Search
Through the Quick Search screen, it is possible to search for Materials, where libraries with the searched materials are displayed. To do this:
1. In the Materials tab, click on Locate .
2. Or in the top bar, click Edit - Find .
2. Enter the material you want to search for and click Locate or press Enter.
3. In the Materials tab, libraries containing the searched material are displayed.
4. Click the Expand All and Collapse All
menus to view the materials found in the libraries.
5. Select the material in the Quick Locate window and it will automatically be selected in the materials bar.