Available from version:
Plugin Builder 1.60.14.21 or higher.
The work areas have zero point settings, which will influence the positioning of operations in the machine programs.
The Zero point by face field determines whether the zero point used is per face or is a single zero point for the entire part.
Configuration
Zero point by face
When you select the Zero point by face field, the screen for defining a zero point per face appears.
Zero point by piece
When deselecting the Zero point by face field, the screen for defining only one zero point for the part will be displayed.
Positioning by work area
Depending on the type of configuration and selected zero points, operations are generated with a different positioning.
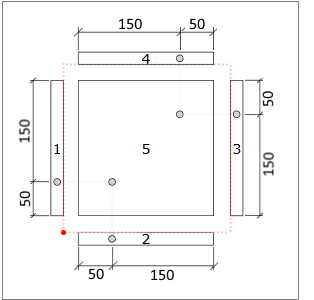
To illustrate all the possible cases, as an example we will use the piece shown below.
IMPORTANT: the part is represented using the 3rd Diedro, is 15mm thick and all operations on profile faces are centered.
Zero point by face
When selecting zero point per face, each face will have its own zero point, and operations will respect the zero point of their respective face. Below are some examples:
Example 01 - Zero point by face
- Configuration
- Part Configuration
- Program Positioning
Face 1:
Drill: X=150, Y=7.5
Face 2:
Drill: X=50, Y=7.5
Face 3:
Drill: X=150, Y=7.5
Face 4:
Drill: X=50, Y=7.5
Face 5:
Drill 1: X=50, Y=50
Drill 2: X=150, Y=150
Example 02 - Zero point by face
- Configuration
 
- Part Configuration
- Program Positioning
Face 1:
Drill: X=50, Y=7.5
Face 2:
Drill: X=150, Y=7.5
Face 3:
Drill: X=50, Y=7.5
Face 4:
Drill: X=150, Y=7.5
Face 5:
Drill 1: X=150, Y=150
Drill 2: X=50, Y=50
Example 03 - Zero point by face
- Configuration
- Part Configuration
- Program Positioning
Face 1:
Drill: X=150, Y=7.5
Face 2:
Drill: X=50, Y=7.5
Face 3:
Drill: X=50, Y=7.5
Face 4:
Drill: X=150, Y=7.5
Face 5:
Drill 1: X=50, Y=150
Drill 2: X=150, Y=50
Zero point per piece
When selecting zero point per piece, all operations will respect the same zero point. Below are some examples:
Example 01 - Zero point per piece
- Configuration
- Part Configuration
 
- Program Positioning
Face 1:
Drill: X=0, Y=50, Z=7.5
Face 2:
Drill: X=50, Y=0, Z=7.5
Face 3:
Drill: X=200, Y=150, Z=7.5
Face 4:
Drill: X=150, Y=200, Z=7.5
Face 5:
Drill 1: X=50, Y=50, Z=0
Drill 2: X=150, Y=150, Z=0
Example 02 - Zero point per piece
- Configuration
- Part Configuration
- Program Positioning
Face 1:
Drill: X=200, Y=150, Z=7.5
Face 2:
Drill: X=150, Y=200, Z=7.5
Face 3:
Drill: X=0, Y=50, Z=7.5
Face 4:
Drill: X=50, Y=0, Z=7.5
Face 5:
Drill1: X=150, Y=150, Z=15
Drill 2: X=50, Y=50, Z=15
Example 03 - Zero point per piece
- Configuration
- Part Configuration
 
- Program Positioning
Face 1:
Drill: X=0, Y=150, Z=7.5
Face 2:
Drill: X=50, Y=200, Z=7.5
Face 3:
Drill: X=200, Y=50, Z=7.5
Face 4:
Drill: X=150, Y=0, Z=7.5
Face 5:
Drill 1: X=50, Y=150, Z=0
Drill 2: X=150, Y=50, Z=0